
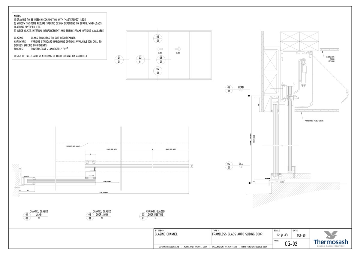
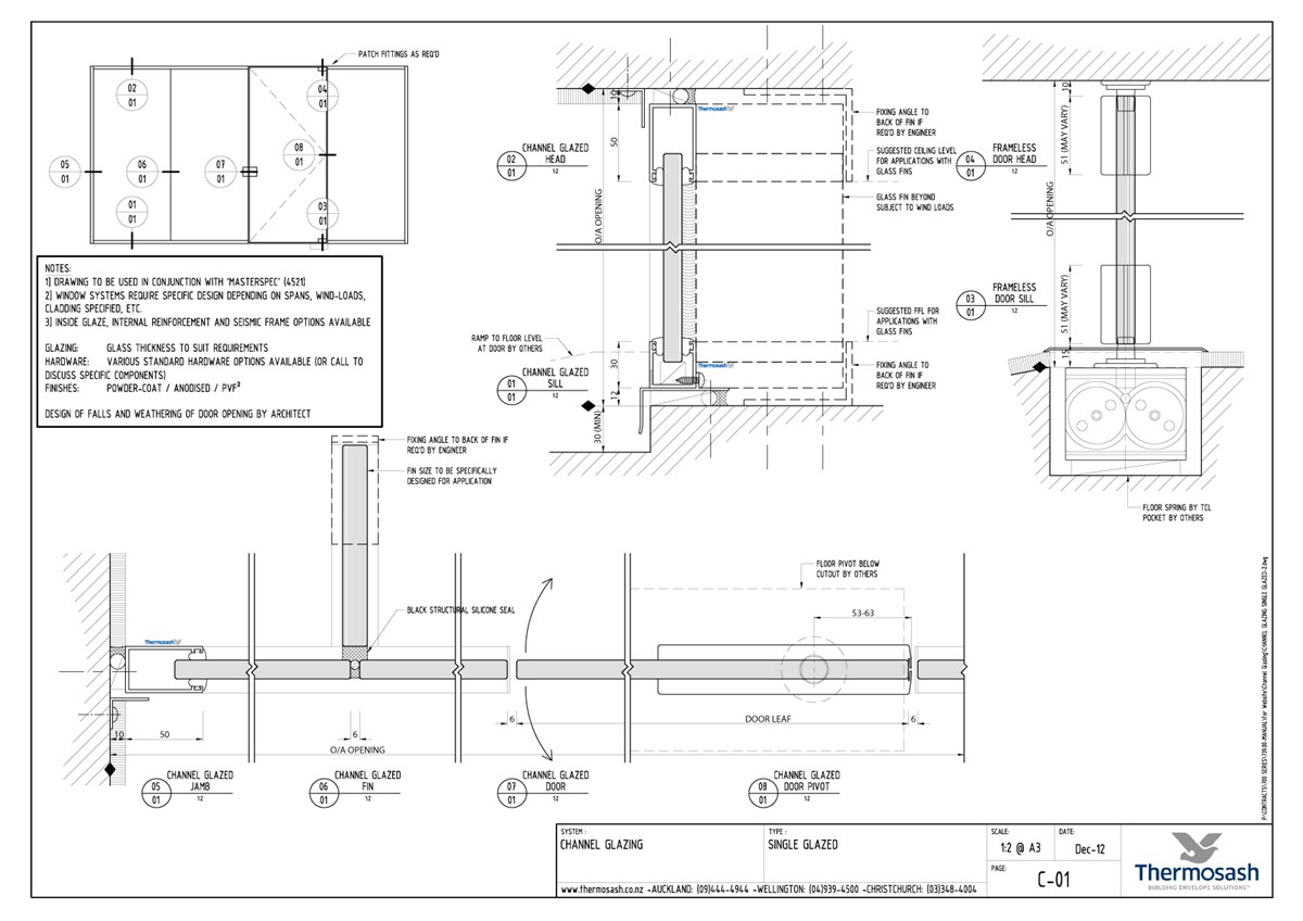
Channel glazing is a method of window glazing which uses a 'U' shaped aluminium channel with metal or rubber gaskets to hold the glass in place. Generally, where large glass panes are employed, they are integrated with an engineered glass fin or a tension truss system or similar. These systems are face sealed in the field and rely on sealant for weathering performance.