Shadetread™

CAD Downloads

Shadetread™ Downloads

Thermosash Shadetread™ - is an engineered open grate aluminium flooring system, originally designed as a maintenance and light weight trafficable access floor. Other practical uses include platforms to the exterior façade allowing a safe access system for cleaning - doubling as an effective shading device. This product has been predominantly specified into our Thermosash twin-wall curtainwall systems, allowing safe light weight access through the cavity zone, whilst allowing maximum convective air flow in these passive ventilated building designs.

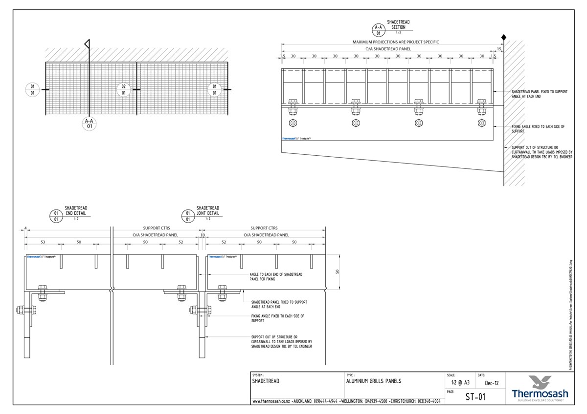
Shadetread™ - Aluminium Grill Panels

Download files

Specification

When specifying the screens the following factors need to be considered. Our in-house engineers then undertake analysis to provide the most structurally economic solution:

  • Screen use - vertical or horizontal shade device / human traffic / ventilation
  • Shade requirement
  • Wind loading
  • Seismic loading back to the structure
  • Fixing locations

Sizing:

  • Panel size is limited only by Anodise bath / Powdercoating or transporting limitations - call us to discuss your project
  • Can be powder coated or anodised to any available colour.

Sizing: ShadetreadTM

ITEM

SIZE

NOTES

Max Width

1230mm

1200mm preferable*

Max Length

3200mm

Could do 3600mm but harder to handle. Shorter the better.

Bar Size

40 x 3mm

Square* or round edge

 

50 x 3mm

Square* or round edge

Slot

50 x 30

Centre to centre

 

50 x 60

Centre to centre

 

50 x 90

Centre to centre

 

100 x 30*

Centre to centre

* Items are standard or preferred

Finishes

  • Polyester powdercoat - both standard and special colours available
  • Anodised - all anodised colours available - commercial grade 20 Micron finish recommended
  • PVF2 Fluorocarbon finishes - available on request